安詩曼電器
手機:133-6050-3273
微信:133-6050-3273
地址:廣東深圳坪山區青松西路8號鴻合科技園

實木地板通常采用硬闊葉樹村,中、高檔實本地板主要采用優質進口材。比較合理的生產方式是先將原木在產地加工成地板坯半成品,并進行板端蠟封,以防止端裂,然后銷往地板加工廠進行人工干燥后,再加工為成品地板。人工干燥是確保實木地板質量的重要環節。干燥的目的主要是使木地板形體穩定,使其在以后
了解詳情
人防指揮工程為什么要除濕?人防指揮工程的防潮,是指從工程建筑與結構方面設法防止工程周圍的水分進入工程內部,阻止工程外部的熱濕空氣通過工程入口、孔口、洞口等處侵入指揮工程內部;在工程內部設法控制水源,使內部的水分散發減少到最低限度。簡言之,就是要想方設法控制、減小、杜絕一
了解詳情
裝修工程用除濕機,梅雨天裝修工程施工除濕必備新聞資訊:在高溫高濕的夏季,室內裝修工程的施工肯定會受到一定的影響,尤其是梅雨天雨水多濕氣重,室內環境濕度超標嚴重,不管是木工、泥工,還是油漆工都是不宜進行施工的;因此,在這樣的潮濕天
了解詳情
供料器,又稱送料器或喂料器,供料器及其承載安裝機構和檢測機構組成的供料系統是貼片機3大基本系統之一。中央供料系統能容納各種相應包裝形式的元件,是將元件傳送到取料部位的一種儲料供料機構。元件以編帶/管式/托盤或散裝等包裝形式放到相應的送料器上。貼片機的貼片頭從該機構中取元件,然后進行貼片,此時,送給機...
了解詳情
養殖場降溫除臭消毒一體機:現代化的養殖滿足了人類對肉類的食用需求,要不然的話,現代的人可不能這么大魚大肉的吃,雖然大家都覺得散養的雞肉、土豬味道鮮美,但是這只能小部分養殖,要想滿足全國人們的肉類需求,還是需要現代化的規模養殖的,別的不說,光一個場地就會讓散養吃不消。現代化規模養殖的好處是可以大量同時...
了解詳情
恒溫恒濕機是非常專業的空氣凈化設備,非專業人士對其認知不足,在選配時往往按被除濕場所的面積進行簡單選型。使用場所(如高等實驗室、凈化車間等)對其設備的溫濕度波動范圍要求嚴格。因此,恒溫恒濕機等空氣凈化設備不能單純依據使用場所的面積來選型,專業恒溫恒濕機供應商是根據使用場所的總體濕負荷
了解詳情
梅雨又稱“霉雨”,每年6月中下旬到7月上旬這段時間,長江中下游地區都會出現連綿不斷的陰雨天氣,多日不見太陽,衣物都容易發霉,人也感覺不舒適,相比南方的朋友們都深受其苦。梅雨季節天公不作美,兩個月的陰雨綿綿,對我們的生活都造成了A的不便,那梅雨季時期又需要注意哪些事情呢?1.梅雨季節,氣溫變化比較大陰...
了解詳情
一、充分清洗干凈,可保衣物長久的艷麗穿過的衣服在收藏時,應先洗滌干凈,即使只是穿過一次而已,因為只要是穿過即會沾染到汗水、污垢、油漬、灰塵……等,如不事先洗凈即收藏起來,很快地小小的污垢即產生小小的霉斑;或是沾染上油漬即變成蛀蟲最好的生長場所。二、讓衣物充分地干燥可保衣物長久的使用,清洗干凈的衣物未...
了解詳情
取暖季,用加濕機補水呵護肌膚:隨著霜降的到來,預示著我國進入了冬天,而且據說今年冬天分外冷,這對于我國南方的小伙伴來說,不是一個好消息,畢竟南方的冷是魔法攻擊,寒氣是會往你的骨頭里鉆的。北方的小伙伴們,這個時候可以開心起來了,因為他們有暖氣,哪怕室外白雪皚皚,但是室內溫度在20度左右,進屋需要脫衣服...
了解詳情
醫院,診所,臨床檢驗中心,綜合門診部,衛生院,療養院等醫療機構和診療機構對空氣濕度的要求與家居環境相似,但相比一般的生活環境,醫療機構和診療機構對空氣濕度的要求更高。在醫院病房中,對不同的病人,空氣濕度應有所變動,例如,患支氣管炎的病人,室內濕度可高一些(約可至80%RH);反之,氣喘病人需比較干燥...
了解詳情
一、什么是木材烘干機木材烘干機可是一個大型設備,最小的也要有一米多高、三四米長。大的則可達到四五米高,十幾米長。它的出現就是為了木屑、木材板、木皮的烘干。并且具有速度快、烘干量大、含水量標準和低烘干成本的優良特點。為廣大木材加工企業所必備。木材
了解詳情
據中國天氣網,今天(12日)開始,除東北氣溫有波動外,北方大部持續回暖。不過,隨著冷空氣影響暫歇,華北、黃淮等地的霧和霾又開始發展增多。明天起至15日,新一輪降水自西南開始發展,將自西向東影響我國南方地區,需要警惕局地強降雨可能引發的地質災害。一、北方大部持續回暖霧和霾
了解詳情
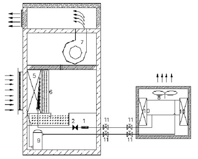
調溫除濕機用蒸發器來給空氣降溫除濕,并回收系統的冷凝熱,彌補空氣中因為冷卻除濕時散失的熱量,是一種高效節能的除濕方式,已經廣泛應用于國防工程、人防工程、煙草及石化行業、地鐵車站、航天領域凈化工程、實驗室、電訊器材室、檔案室、食品房、制藥或膠片車間、特種玻璃制造、糧食、木材等的
了解詳情
百病濕為首,濕氣入體會導致各種各樣的疾病出現,但是很多人并不知道薏仁等祛濕物的宜忌,更完全沒意識到體內的濕氣也是分“寒”“熱”的!不同屬性的濕氣祛濕方法也不盡相同,快來看看那些方法更適合你呢?濕氣易滲透,入體分“寒”“熱”濕氣遇寒則成為寒濕:這就好比冬天的時候,如果氣候干燥,不管怎么冷,人都還是能接...
了解詳情
中藥材是容易受潮變質的物品,所以中藥材在倉庫存儲中離不開除濕機。中藥材受潮后就會霉變,霉菌在其表面或內部滋生、繁殖,從而導致藥材變質。中藥材包括根、莖、葉、果實、種子、皮類等。中藥材的外形、大小、厚薄、輕重、質地、成分等等因素都影響烘干的過程濕度對藥品的質量影響很大。濕度太高能使藥品潮解
了解詳情
不論是在日常生活中,還是在工業生產中,人們對周圍環境空氣濕度的大幅變化是非常敏感的;特別是受到潮濕多雨天氣的影響,空氣濕度就會更高,有時會高達90%RH以上,大量的潮濕空氣嚴重影響我們的日常生活、工作辦公以及工業生產的正常順利進行、物流倉庫的物品儲存,還有就是對人員的身體健康也會到不小的損害!特別是...
了解詳情
疫情再起如何消毒?過氧化氫智能霧化消毒機:消毒藥液“飄”在空氣中,從而包裹更多的病毒和病菌并氧化滅殺,可以單獨移動使用,也可以安裝管道對較大空間的室內進行全面消毒,是防范疫病殺菌消毒的好幫手。
了解詳情
氫氟碳化物將被淘汰,除濕機行業如何面對:什么是氫氟碳化物?不是做這個的大家可能都不明白,如果小編說另外一個詞,那么大家都知道了,制冷劑,我們使用的空調、冰箱里的制冷劑就是氫氟碳化物組成的。制冷劑發展到現在已經是第四代了,我國使用的最多的就是R22這種制冷劑,也就是我們普通所說的氟利昂。以前的制冷劑由...
了解詳情
網咖是人們休閑娛樂場所,通常封閉性好,人員密集,呼吸產生的廢氣比較多,再加上電腦設備長時間運行產生熱量,給空氣流通帶來巨大的阻礙,都能使人的大腦感覺不舒服,不僅影響上網的情緒,更對網民的身體健康造成巨大的影響。我們知道,去網咖消費的人群對生活品質的追求比較高,對環境的要求也比較挑剔,可以說,在服務項...
了解詳情
在生活中,我們很多人都發現生活的環境是非常潮濕的了,因此對于我們很多人來說,在生活中都是會出現身體問題的了,尤其是會讓身體存在濕氣了,我們在這時候就要注意及時的幫助自己排濕了哦,那么應該怎么做呢,下面就讓我們看看吧。毛孔:全身的毛孔張開時,若不注意保護,寒邪會乘虛而入。劇烈運動后大汗淋漓
了解詳情